Scroll

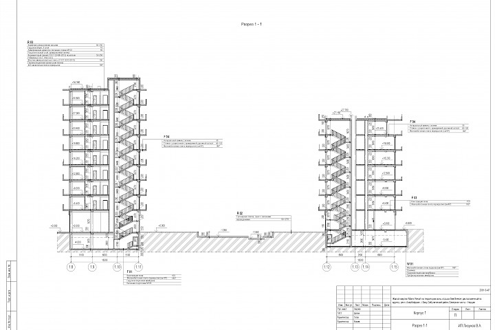
Design in Progress for Sectors I and II of the Miami Residence Residential Complex

Published

08/06/2025

The first and second sectors of the Miami Residence project, located within the Sea Breeze residential complex, are currently under design.
The design work is being carried out by Hydrotrans Engineering.

The project is being developed in accordance with modern architectural and engineering standards and will become an important part of the Sea Breeze urban environment.

Read other news

Vileshchay Reservoir: Documentation Preparation Ongoing

Vileshchay Reservoir: Documentation Preparation Ongoing

21/08/2025

Read more

Vileshchay Reservoir: Documentation Preparation Ongoing
Sahil Collector: Documentation Preparation Ongoing

Sahil Collector: Documentation Preparation Ongoing

20/08/2025

Read more

Sahil Collector: Documentation Preparation Ongoing
Fuzuli District: Ongoing Design of Water Supply and Sewerage Systems

Fuzuli District: Ongoing Design of Water Supply and Sewerage Systems

20/08/2025

Read more

Fuzuli District: Ongoing Design of Water Supply and Sewerage Systems
Completion of Ayrichay Reservoir. Documentation Preparation Continues

Completion of Ayrichay Reservoir. Documentation Preparation Continues

17/08/2025

Read more

Completion of Ayrichay Reservoir. Documentation Preparation Continues
Ongoing Work on the Land Reclamation and Water Management Project in Jabrayil District

Ongoing Work on the Land Reclamation and Water Management Project in Jabrayil District

14/08/2025

Read more

Ongoing Work on the Land Reclamation and Water Management Project in Jabrayil District
The ceremonial opening of the new section of the M-12 "Vostok" expressway took place

The ceremonial opening of the new section of the M-12 "Vostok" expressway took place

16/07/2025

Read more

The ceremonial opening of the new section of the M-12 "Vostok" expressway took place
Design Work Continues on Mughanly–Ismayilli–Gabala Road

Design Work Continues on Mughanly–Ismayilli–Gabala Road

27/06/2025

Read more

Design Work Continues on Mughanly–Ismayilli–Gabala Road
Design of a new road tunnel between Hasan Aliyev Street and "Koroglu" metro station, parallel to Ziya Bunyadov Avenue, is underway

Design of a new road tunnel between Hasan Aliyev Street and "Koroglu" metro station, parallel to Ziya Bunyadov Avenue, is underway

20/06/2025

Read more

Design of a new road tunnel between Hasan Aliyev Street and "Koroglu" metro station, parallel to Ziya Bunyadov Avenue, is underway
Design in Progress for Sectors V and VI of the Miami Residence Residential Complex

Design in Progress for Sectors V and VI of the Miami Residence Residential Complex

17/06/2025

Read more

Design in Progress for Sectors V and VI of the Miami Residence Residential Complex
Design in Progress for Sectors III and IV of the Miami Residence Residential Complex

Design in Progress for Sectors III and IV of the Miami Residence Residential Complex

10/06/2025

Read more

Design in Progress for Sectors III and IV of the Miami Residence Residential Complex
Design of Bridges over the Syr Darya Continues on the New Darbaza–Uzbekistan Border Railway Line

Design of Bridges over the Syr Darya Continues on the New Darbaza–Uzbekistan Border Railway Line

07/06/2025

Read more

Design of Bridges over the Syr Darya Continues on the New Darbaza–Uzbekistan Border Railway Line
President Ilham Aliyev reviewed the progress of construction on the Mughanly–Ismayilli–Gabala highway

President Ilham Aliyev reviewed the progress of construction on the Mughanly–Ismayilli–Gabala highway

26/05/2025

Read more

President Ilham Aliyev reviewed the progress of construction on the Mughanly–Ismayilli–Gabala highway
HYDROTRANS ENGINEERING and EVRASCON Employees Receive Certificates of Appreciation from the State Agency of Azerbaijan Automobile Roads

HYDROTRANS ENGINEERING and EVRASCON Employees Receive Certificates of Appreciation from the State Agency of Azerbaijan Automobile Roads

30/04/2025

Read more

HYDROTRANS ENGINEERING and EVRASCON Employees Receive Certificates of Appreciation from the State Agency of Azerbaijan Automobile Roads
Hydrotrans Engineering is responsible for the design of a bridge crossing over the Kudepsta River as part of the fourth stage of the "Adler Bypass Highway" project.

Hydrotrans Engineering is responsible for the design of a bridge crossing over the Kudepsta River as part of the fourth stage of the "Adler Bypass Highway" project.

01/04/2025

Read more

Hydrotrans Engineering is responsible for the design of a bridge crossing over the Kudepsta River as part of the fourth stage of the "Adler Bypass Highway" project.
Hydrotrans Engineering is carrying out the design of a road overpass as part of the "Adler Bypass Road" project.

Hydrotrans Engineering is carrying out the design of a road overpass as part of the "Adler Bypass Road" project.

01/04/2025

Read more

Hydrotrans Engineering is carrying out the design of a road overpass as part of the "Adler Bypass Road" project.
Caspian Dream Liner

Caspian Dream Liner

08/07/2024

Read more

Caspian Dream Liner
Skyline Hotel & Residences

Skyline Hotel & Residences

08/07/2024

Read more

Skyline Hotel & Residences
Engineering the artificial island "NIKKI BEACH"

Engineering the artificial island "NIKKI BEACH"

Read more

Engineering the artificial island "NIKKI BEACH"
Engineering a pedestrian crossing for 21.4 km of the M-4 Baku-Shamakhi-Yevlakh highway

Engineering a pedestrian crossing for 21.4 km of the M-4 Baku-Shamakhi-Yevlakh highway

29/05/2023

Read more

Engineering a pedestrian crossing for 21.4 km of the M-4 Baku-Shamakhi-Yevlakh highway
Engineering  the expansion of the Muganli-Ismayilli-Gabala highway to 4 lanes

Engineering the expansion of the Muganli-Ismayilli-Gabala highway to 4 lanes

Read more

Engineering  the expansion of the Muganli-Ismayilli-Gabala highway to 4 lanes
Engineering of repair and restoration works at the dams of the Kondalanchay reservoir

Engineering of repair and restoration works at the dams of the Kondalanchay reservoir

24/07/2021

Read more

Engineering of repair and restoration works at the dams of the Kondalanchay reservoir
Engineering of repair and restoration works at the dam of the Xachinchay reservoir

Engineering of repair and restoration works at the dam of the Xachinchay reservoir

22/07/2021

Read more

Engineering of repair and restoration works at the dam of the Xachinchay reservoir
Engineering of repair and restoration works at the dam of the Sugovushan reservoir

Engineering of repair and restoration works at the dam of the Sugovushan reservoir

23/07/2021

Read more

Engineering of repair and restoration works at the dam of the Sugovushan reservoir
Ilham Aliyev attended opening of Baku International Sea Trade Port Complex

Ilham Aliyev attended opening of Baku International Sea Trade Port Complex

14/05/2018

Read more

Ilham Aliyev attended opening of Baku International Sea Trade Port Complex
Ilham Aliyev attended the ceremony to start water supply from Takhtakorpu-Jeyranbatan canal to new lands in Khizi District

Ilham Aliyev attended the ceremony to start water supply from Takhtakorpu-Jeyranbatan canal to new lands in Khizi District

04/09/2015

Read more

Ilham Aliyev attended the ceremony to start water supply from Takhtakorpu-Jeyranbatan canal to new lands in Khizi District